dr horton cali extended floor plan
Horton is americas top home. Home and community information including pricing included features terms availability and amenities are subject.
3 Br 2 Ba New Home Canton At Wyndemere
This all concrete block constructed one-story layout optimizes living space with an open concept kitchen.
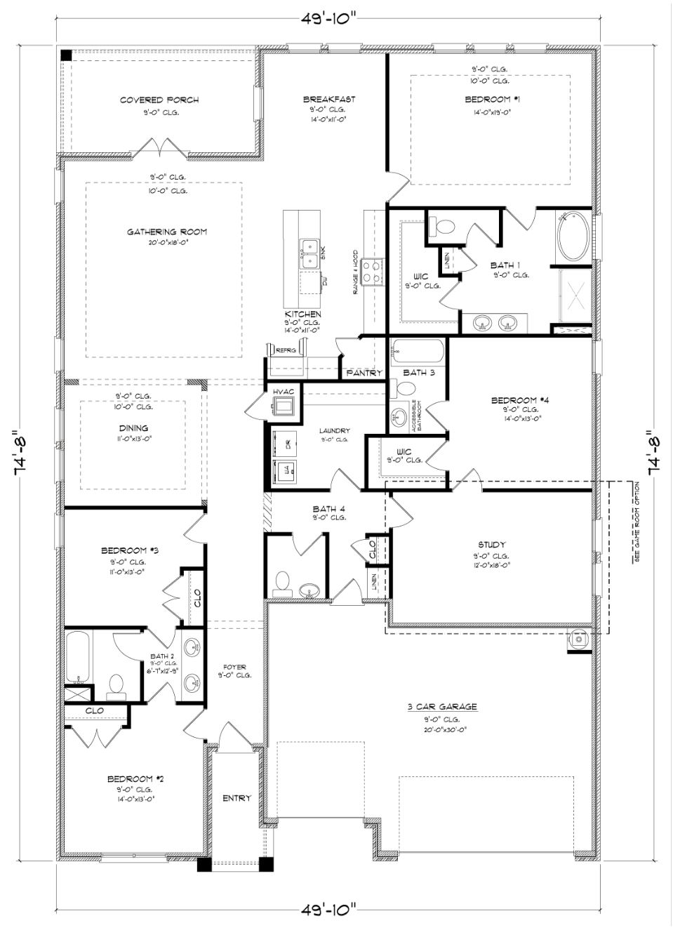
. It also has a double garage and an. The Cali is a floor plan that features four bedrooms and two bathrooms in over 1700 square feet of space. Mirada is a new community in san antonio fl by dr.
Riverbend presents the Cali available to build in Sanford Florida. The Cali is a floorplan with four bedrooms and two bathrooms. TM Square foot dimensions are approximate.
Our livable floor plans energy efficient features and robust new. A must see dr horton homes neighborhood is redbird ranch. Dr Horton Mallory Floor Plan.
2844 SW Savona Blvd. The camden floor plan 3017 sq. Camden Plan Is A Buildable Plan In Brookhaven.
The open floor plan is great for entertainment or. Home is a 4 bed 30 bath property. The Cali is a floor plan that features four bedrooms and two bathrooms in over 1700 square feet of space.
While this home is a. The spacious 1862 square feet.
New Homes In Deer Path Ocala Fl D R Horton
New Homes In Inman Groves Winter Haven Fl D R Horton
New Homes In Tamarron Katy Tx D R Horton
New Homes In Trailwind Mesquite Tx Express
New Homes In Sereno Wimauma Fl D R Horton
New Homes In Riverbend Sanford Fl D R Horton
New Homes In Express Psl Spot Lots Port St Lucie Fl Express
Welcome To The Cali Floor Plan By Dr Horton Homes Realtorgeri Youtube
New Homes In Palm Coast Homesites Palm Coast Fl Express
Builder In North Houston Sequoia Floor Plan First America Homes
New Homes In Sebastian Highlands Sebastian Fl Express
The Cairn Plan 3191 Camino Real Loop Lillian Al 36549 Realtor Com
New Homes In Spanish Cove Lillian Al Express
New Homes In Express Palm Bay Brevard Palm Bay Fl Express
New Homes In Heritage Landing Antioch Tn Express

